Dvižno drsne panoramske stene PVC Nagode odlikujejo prag v višini končanega tlaka, izjemna prilagodljivost izvedbe, možnost zasteklitve velikih dimenzij, enostavno vodenje večjih kril in visoka toplotna izolativnost.
Sistemi dvižno drsnih panoramskih sten omogočajo zasteklitev do širine 600 cm in več.
Glede na vaše želje in potrebe lahko izbirate med PVC ali ALU profilom dvižno drsnih panoramskih sten.
| Toplotna prehodnost okvirja (Uf) | Toplotna prehodnost stekla (Ug) | Toplotna prehodnost okna (Uw) |
|---|---|---|
| do 1.3 W/m²K | do 0.4 W/m²K | do 0.67 W/m²K |

Načini izvedbe dvižno drsnih panoramskih sten
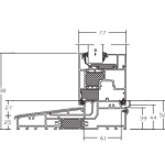
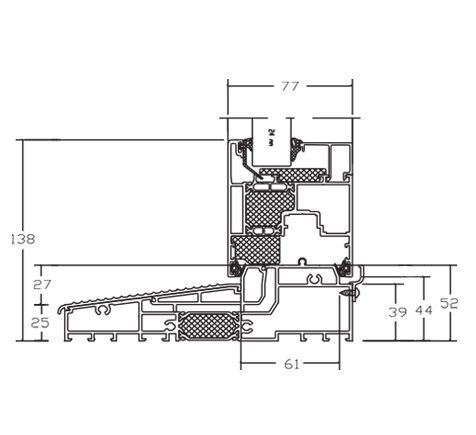
Velike steklene površine igrajo v sodobni arhitekturi veliko vlogo. Tem zahtevam se je prilagodil sistem dvižno drsnih panoramskih sten PVC Nagode.
Z uporabo “high-tech” materialov je zagotovljena stabilnost profilov. Sistemska konstrukcija z več-komornimi profili omogoča izvedbo dvižno drsnih sten z izolativnostjo, ki zadostuje standardu pasivne hiše. Tesnila z vulkaniziranimi vogali ščitijo pred prepihom, prahom, vodo in toplotnimi izgubami.
Sistem dvižno drsnih panoramskih sten PVC Nagode prepriča s svojo inovativno tehnologijo in največjo možno natančnostjo pri konstrukciji in izdelavi.












