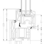
- 7/6 komorni PVC profil Rehau
- profilni sistem Uf = 1,0 W/m2K
- toplotna prehodnost celotnega okna do Uw = 0,77 W/m2K
- več barvnih možnosti
- tri naokoli tekoča tesnila EPDM
- vgradna globina profila 80 mm
- možnost vgradnje stekla do 51 mm
- primeren za vgradnjo v nizko-energijske in pasivne hiše
| Sestava stekla | Toplotna prehodnost stekla (Ug) | Toplotna prehodnost okna (Uw) |
|---|---|---|
| 4-14-4-14-4 TGI | 0.6 W/m²K | 0.83 W/m²K |
| 4-18-4-18-4 TGI | 0.5 W/m²K | 0.77 W/m²K |

PVC-ALU okno SYNEGO CLIPP predstavlja izredno odporen in v kombinaciji s troslojno zasteklitvijo (4 – 18 – 4 – 18 – 4 TGI) enega najboj energetsko učinkovitih sistemov oken PVC Nagode (Uw = 0,77 W/m2K), primeren tudi za vgradnjo v nizko-energijske in pasivne hiše.
PVC-ALU okna SYNEGO CLIPP, oblikovana z mislijo na prihodnost, omogočajo veliko arhitekturnih možnosti z individualnimi oblikami. Montaža okna je lahkotna zaradi oblike profila. Material iz katerega je narejen profil je mogoče reciklirati, zato se smatra kot okolju prijazen. ALU pokrivna maska dodatno ščiti okvir pred negativnimi zunanjimi vplivi, okno pa je tudi bolj odporno na udarce.
HDF-površine so čiščenju zelo prijazne
Skrivnost HDF-formule (High-Definition-Finishing) se skriva v posebni recepturi in izboljšanim postopkom same izdelave proizvoda. Površina je občutno bolj gladka in pritegne vašo pozornost z visoko stopnjo sijaja.
PVC profili SYNEGO CLIPP so inovativno oblikovani s tremi EPDM tesnili, ki kljubujejo vsem vremenskim vplivom in zagotavljajo zrakotesnost okna.
Možnost izbire notranje barve profila v PVC dekor Renolit foliji in zunanje ALU barve po RAL lestvici ter lesnih dekorjev. V kombinaciji z drugimi dodatki za PVC okna, vam omogočajo oblikovanje profila po lastnih estetskih preferencah.
PVC-ALU okna SYNEGO CLIPP iz linije SYNEGO so na voljo tudi v izvedbi PVC, brez ALU pokrivne maske, in sicer s profilom SYNEGO.












